Voto Salvato!
Lo vedrai solo tu
Commento salvato!
Aggiungi la tua valutazione e/o un commento per questo annuncio. Lo vedrai solo tu

Appartamento 144m2 con riscaldamento parcheggio in Zona Concordia Burjassot

  • da 144 m2
  • 3 hab.
  • 1 bagno
  • 3.365 €/m2
VIVIENDA SOSTENIBLE EN EL CORAZÓN DE BURJASSOT
Appartiene alla promozione

VIVIENDA SOSTENIBLE EN EL CORAZÓN DE BURJASSOT

Esta promoción tiene 13 tipos de abitazioni Vedi promozione

Vivienda sostenible en el corazón de Burjassot

aProperties presenta un proyecto residencial innovador que redefine la forma de vivir en armonía con el entorno.

Situado en pleno centro de Burjassot, junto a la calle Liria —principal eje comercial de la ciudad— y a pocos pasos del Ayuntamiento y del campus universitario. Rodeado de espacios verdes como La Granja, Los Silos y la Huerta de Valencia, y con todos los servicios que necesitas a tu alcance.

Una nueva forma de habitar. Vivir bien. Vivir verde.

Este residencial ofrece estudios y apartamentos de 1 a 3 dormitorios, diseñados para quienes buscan un estilo de vida urbano, eficiente y sostenible. Cada detalle refleja un firme compromiso con el medio ambiente:

Construcción en madera técnica, reduciendo al mínimo el uso de materiales con alta huella de carbono como el hormigón o el acero.

Edificio casi neutro en carbono, concebido para minimizar el impacto ambiental desde su diseño.

Energías renovables y eliminación total de combustibles fósiles, como el gas.

Soluciones basadas en la naturaleza, con jardinería planificada y una arquitectura que favorece la luz natural en cada rincón.

Zonas comunes para la convivencia, que amplían tu forma de vivir y fomentan el encuentro vecinal.



Oportunidad de inversión

Nos encontramos en fase inicial de comercialización, con precios de salida especialmente atractivos para quienes apuestan por el valor de lo sostenible y la evolución urbana de Burjassot.

Una ocasión única para invertir en una vivienda con alta proyección de revalorización, tanto por su ubicación estratégica como por su diseño innovador y compromiso ambiental.

Forma de pago:
10% + IVA a la firma del contrato de compraventa.
10% + IVA en mensualidades durante la construcción.
80% + IVA restante a la entrega de la vivienda, prevista para finales de 2025

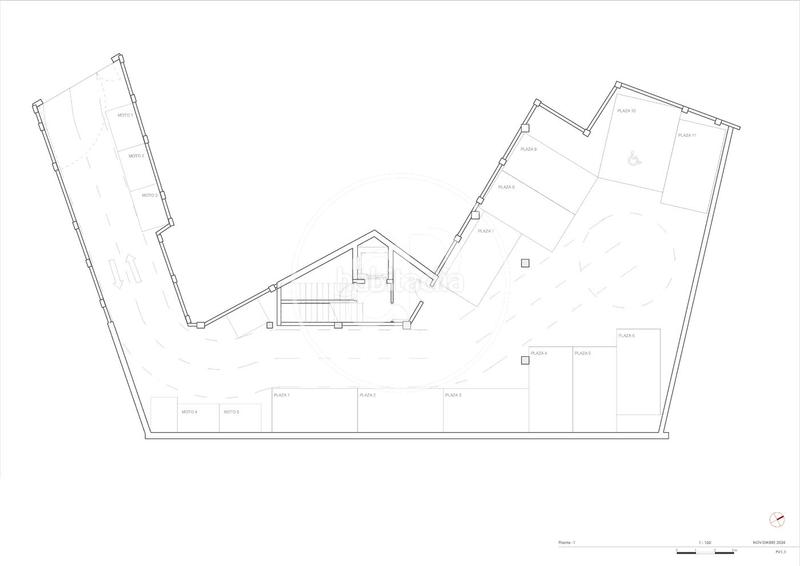
Plaza de garaje opcional no incluida en el precio desde 15.000€+IVA
Plaza de moto opcional no incluida en el precio desde 7.500 €+ IVA

ultima modifica

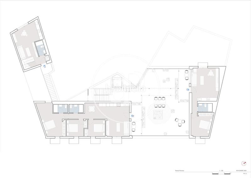
Distribuzione

  • 3 stanze
  • Superficie 144 m2
  • Terrazza 10 m2
  • 1 bagno
  • Cucina abitabile: No

Caratteristiche Generali

  • Riscaldamento
  • Posto auto
  • Aria Condizionata
  • Piano numero 2
  • Certificato energetico :
    Consumo:
    A
    1 kW h m2 / año
    Emisiones:
    A
    1 kg CO2 m2 / año

Impianti condominiali

  • Ascensore
Annuncio: 4737003825347

Ubicazione

Zona Concordia

Naviga per la mappa cliccandoci sopra
484.500 € Prezzo dell´annuncio
2.291 €/m2€/m2 población
3.365 €/m2€/m2 dell´annuncio
Quanto ti piacerebbe pagare?
Vedi evoluzione €/m2 in Burjassot
Ti avvisiamo quando abbiamo un annuncio come questo? Crea il tuo avviso e noi ti avvertiremo per posta elettronica quando ci saranno annunci nuovi o se saranno modificati
 

Appartiene alla promozione VIVIENDA SOSTENIBLE EN EL CORAZÓN DE BURJASSOT

Burjassot
Promoción VIVIENDA SOSTENIBLE EN EL CORAZÓN DE BURJASSOT Burjassot da 201.700 €
Consegna: Diciembre 2025
Vedi promozione
Altri tipi di case di questa promozione

Contatta APROPERTIES REAL ESTATE - VALENCIA

Codice rif. annuncio habitaclia/ONV2506003:

Vedrai il telefono dopo aver inviato il tuo contatto all’annunciante di modo che ti può rispondere.
Vedrai il telefono dopo aver stabilito il contatto
Inviando...