Voto Salvato!
Lo vedrai solo tu
Commento salvato!
Aggiungi la tua valutazione e/o un commento per questo annuncio. Lo vedrai solo tu

Appartamento 136m2 in El Viso Madrid

  • da 136 m2
  • 2 hab.
  • 2 bagni
  • 16.471 €/m2
Promoción de Obra Nueva en Castellana
Appartiene alla promozione

Promoción de Obra Nueva en Castellana

Esta promoción tiene 12 tipos de abitazioni Vedi promozione

Hemos creado un concepto muy exclusivo con interiores abiertos y cálidos con los que se pretende conseguir confort y calidad de vida para aquellos que puedan disfrutarlo.

Este singular proyecto se encuentra ubicado en el corazón de Madrid.

Las exclusivas viviendas de 2 a 4 habitaciones permiten que se entienda el lujo como todo aquello que supera los medios habituales para conseguirlo.

Ponemos a su disposición la posibilidad de personalización de las viviendas en cuanto a distribución interior y acabados, permitiendo definir los espacios de las mismas, bajo el protocolo aprobado por nuestro equipo técnico.

Podrá elegir los detalles interiores, dentro una cuidada selección de acabados de las principales firmas de máxima calidad.

Este singular proyecto es algo más que viviendas, es un proyecto creado para adaptarse al estilo de vida de sus residentes.

Gran Lobby de acceso al edificio en el que se ubica:

Recepción con control de entrada y acceso al garaje, donde se encontrará el/la recepcionista y asistente.
Gran salón para la recepción de visitas con iluminación natural a través de grandes ventanales que ofrecen unas magníficas vistas a un exquisito patio inglés.
Espaciosa sala de co-living y de coworking equipadas para la celebración de Work meetings o fiestas.

Valet parking.
Sport Zone que cuenta con un exclusivo gimnasio equipado, sala para clases con personal trainer y sala de masaje.
Spa Center.
Gourmet Experience Space para la celebración momentos especiales.

ultima modifica

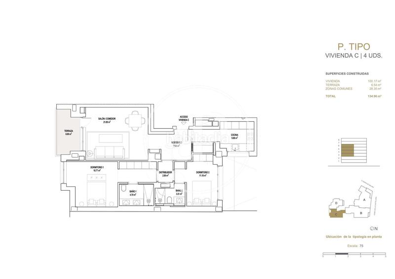
Distribuzione

  • 2 stanze
  • Superficie 136 m2
  • Balcone / Terrazza 7 m2
  • 2 bagni
  • Cucina abitabile: No

Caratteristiche Generali

  • Senza posto auto
  • Senza aria condizionata
  • Piano numero 6
  • Certificato energetico :
    Consumo:
    G
    999 kW h m2 / año
    Emisiones:
    G
    999 kg CO2 m2 / año

Impianti condominiali

  • Equipamiento deportivo
Annuncio: 15240003796780

Ubicazione

El Viso

Naviga per la mappa cliccandoci sopra
2.240.000 € Prezzo dell´annuncio
7.986 €/m2€/m2 distrito
16.471 €/m2€/m2 dell´annuncio
Quanto ti piacerebbe pagare?
Vedi evoluzione €/m2 in Madrid (Chamartín)
Ti avvisiamo quando abbiamo un annuncio come questo? Crea il tuo avviso e noi ti avvertiremo per posta elettronica quando ci saranno annunci nuovi o se saranno modificati
 

Appartiene alla promozione Promoción de Obra Nueva en Castellana

Madrid
Promoción Promoción de Obra Nueva en Castellana Madrid da 1.640.000 € Vedi promozione
Altri tipi di case di questa promozione

Contatta Aproperties Real Estate Madrid

Codice rif. annuncio habitaclia/ONM2411003:

Vedrai il telefono dopo aver inviato il tuo contatto all’annunciante di modo che ti può rispondere.
Vedrai il telefono dopo aver stabilito il contatto
Inviando...