Voto Salvato!
Lo vedrai solo tu
Commento salvato!
Aggiungi la tua valutazione e/o un commento per questo annuncio. Lo vedrai solo tu

Appartamento in Sant Antoni Barcelona

  • 82 m2
  • 3 hab.
  • 1 bagno
  • 5.366 €/m2

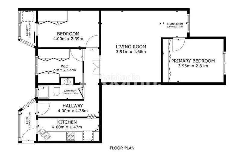
Vivienda en venta situada en la Calle Aldana, en una finca con ascensor y ubicada en una planta alta que se abre a un amplio y tranquilo patio de manzana, lo que garantiza abundante luz natural y un ambiente silencioso.
La distribución es cómoda y equilibrada, con un salón comedor que ofrece dos ambientes diferenciados —zona de estar y zona de comedor—, tres dormitorios (uno doble y dos individuales), una cocina independiente y un baño completo.
La vivienda se encuentra en excelente estado de conservación, recién pintada y con suelos y puertas nuevos, ofreciendo una imagen actual, cálida y acogedora, perfecta para entrar a vivir desde el primer día. Además, dispone de altillo, preinstalación de calefacción, aire acondicionado con bomba de calor en el salón comedor y ventilación cruzada, que aporta frescor y confort durante todo el año.
Una oportunidad ideal para quienes buscan calidad de vida en un entorno sereno y bien comunicado.
Cerca de la vivienda tienes varias líneas de autobús (D20, D50, H14, V11) y metro (L2, L3) muy cerca. También hay supermercados como Consum o Caprabo en la zona, y un centro de salud público (CAP Les Hortes) en el Poble-Sec.

ultima modifica

Distribuzione

  • 3 stanze
  • Superficie 82 m2
  • 1 bagno

Caratteristiche Generali

  • Piano numero 4
  • Anno di costruzione 1960
  • Certificato energetico :
    Consumo:
    C
    21 kW h m2 / año
    Emisiones:
    D
    114 kg CO2 m2 / año

Impianti condominiali

  • Ascensore
Annuncio: 42180000000378

Ubicazione

Sant Antoni Calle ALDANA

Naviga per la mappa cliccandoci sopra
440.000 € Prezzo dell´annuncio
7.014 €/m2€/m2 distrito
5.366 €/m2€/m2 dell´annuncio
24% più economico della media*
Vedi evoluzione €/m2 in Barcelona (Eixample)
Ti avvisiamo quando abbiamo un annuncio come questo? Crea il tuo avviso e noi ti avvertiremo per posta elettronica quando ci saranno annunci nuovi o se saranno modificati
 

Contatta Comfi Homes

Codice rif. annuncio habitaclia/COMFI 744663:

Vedrai il telefono dopo aver inviato il tuo contatto all’annunciante di modo che ti può rispondere.
Vedrai il telefono dopo aver stabilito il contatto
Inviando...