Voto Salvato!
Lo vedrai solo tu
Commento salvato!
Aggiungi la tua valutazione e/o un commento per questo annuncio. Lo vedrai solo tu

Capannone industriale in Lavadores Vigo

AVENIDA DE MADRID

  • 1.500 m2
  • 590 €/m2

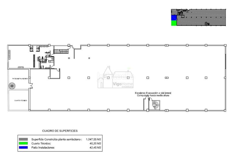
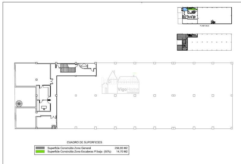
¡Oportunidad única en la Avenida de Madrid! Se vende amplia NAVE INDUSTRIAL de 1.500 m² construidos, ubicada a pocos minutos del centro de la ciudad y con excelente acceso a las principales vías de comunicación.

Dispone de subaltura destinada a oficinas, zona de entrada y salida de camiones para carga y descarga, además de una zona de aparcamiento al aire libre situada delante de la nave, que aporta gran comodidad para empleados y clientes.

Como valor añadido, existe la posibilidad de adquirir las oficinas comerciales de 500 m² situadas sobre la propia nave, ampliando así el espacio y ofreciendo mayor versatilidad para combinar área de trabajo administrativo con superficie logística e industrial.

Una propiedad estratégica y polivalente, perfecta para emprendedores e inversores que buscan potenciar su negocio en una ubicación privilegiada de Vigo.

CONTÁCTANOS YA Para más información, visita y reservas en VigoHome

Consúltanos sin compromiso y le ayudaremos a encontrar el local que mejor se adapte a sus necesidades.

Puedes ver el resto de nuestras propiedades disponibles en nuestra página web, ponte en contacto con nosotros y estaremos encantados en orientarte en tu compra. Te acompañaremos y asesoraremos en el proceso de la compraventa hasta la entrega de llaves.

Asesórate con nosotros. Ofrecemos estudio financiero gratis donde podrás conseguir una financiación a tu medida (sujeta a estudio)

Contáctanos ya!! A través de este formulario, llamándonos o a través de nuestra web

La información contenida en este anuncio es meramente informativa y no tiene carácter contractual.

ultima modifica

Distribuzione

  • Superficie 1500 m2

Caratteristiche Generali

  • Anno di costruzione 1999
Annuncio: 33588000002651

Ubicazione

Lavadores AVENIDA DE MADRID

Naviga per la mappa cliccandoci sopra
Ti avvisiamo quando abbiamo un annuncio come questo? Crea il tuo avviso e noi ti avvertiremo per posta elettronica quando ci saranno annunci nuovi o se saranno modificati
 

Contatta VigoHome

Codice rif. annuncio habitaclia/L010193:

Vedrai il telefono dopo aver inviato il tuo contatto all’annunciante di modo che ti può rispondere.
Vedrai il telefono dopo aver stabilito il contatto
Inviando...