Voto Salvato!
Lo vedrai solo tu
Commento salvato!
Aggiungi la tua valutazione e/o un commento per questo annuncio. Lo vedrai solo tu
5.750.000 € Avvisami se diminuisce
è diminuito 750.000 €

Casa con piscina in Casares golf - Casares del sol Casares

  • 552 m2
  • 4 hab.
  • 6 bagni
  • 10.417 €/m2

Villa Llave en Mano Frente al Golf con Serenas Vistas en Casares
Esta promoción llave en mano está situada en el municipio de Casares. Casares es a menudo conocido como uno de los "pueblos blancos" que mantiene su encanto auténtico, mientras que abraza las comodidades de la vida contemporánea. Los entusiastas del golf se encontrarán en el paraíso del golfista, con varios campos de golf aclamados en las inmediaciones. Casares ofrece un ambiente relajado, por lo que es un destino ideal para aquellos que buscan un refugio tranquilo o una casa de vacaciones en un entorno pintoresco.
La villa en venta en Casares, España, se encuentra en las instalaciones del prestigioso Golf Resort, a tan sólo 500 m del Club de Golf y del Hotel de 5 estrellas con una variada oferta de exclusivas opciones gastronómicas. Se tarda menos de 5 minutos en coche en llegar a la carretera principal de la costa y a las playas más cercanas. Todas las comodidades y servicios diarios están al alcance de la mano. La propiedad está a 10 km del centro de la vecina Estepona, a 30 km de Marbella y Puerto Banús, y a 85 km del aeropuerto internacional de Málaga.
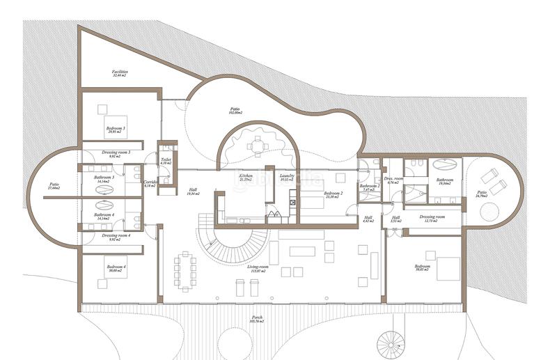
Esta excepcional villa orientada al oeste es una obra maestra de brillantez arquitectónica, que representa una mezcla perfecta de singularidad y sofisticación. Realizada por arquitectos de renombre, la estructura combina elementos futuristas con un encanto nostálgico, llamando la atención por sus líneas fluidas y su perfecta integración en el entorno, ejemplificando una coexistencia equilibrada con la naturaleza. Esta villa de última generación se alza sobre una generosa parcela de 2340 m2 en primera línea de golf y ofrece amplias zonas exteriores con una piscina en forma de huevo rodeada de cuidados jardines.
Esta impresionante villa lista para entrar a vivir cuenta con 552 m2 de superficie construida y 457 m2 de terrazas. Gracias a sus grandes ventanales y puertas correderas de cristal, la luz natural inunda el interior, conectándolo a la perfección con el exterior. Todos los espacios de estar y comedor se distribuyen en la planta baja, mientras que la planta superior sirve de entrada y está inteligentemente diseñada para el aparcamiento, así como para preparar el escenario para recibir a los invitados. La escalera de caracol del nivel superior da acceso directo al jardín y a la zona de la piscina. AGP-00869

ultima modifica

Distribuzione

  • 4 stanze
  • Superficie 552 m2
  • Terreno 2342 m2
  • 6 bagni
  • ripostiglio

Caratteristiche Generali

  • Piscina privata
  • Aria Condizionata
  • Certificato energetico :
    Consumo:
    G
    999 kW h m2 / año
    Emisiones:
    G
    999 kg CO2 m2 / año
Annuncio: 55825000001488

Ubicazione

Casares Golf - Casares del Sol

Naviga per la mappa cliccandoci sopra
5.750.000 € Prezzo dell´annuncio
4.396 €/m2€/m2 población
10.417 €/m2€/m2 dell´annuncio
Vedi evoluzione €/m2 in Casares
Ti avvisiamo quando abbiamo un annuncio come questo? Crea il tuo avviso e noi ti avvertiremo per posta elettronica quando ci saranno annunci nuovi o se saranno modificati
 

Contatta TEKCE

Codice rif. annuncio habitaclia/AGP-00869-4-DetachedVilla:

Vedrai il telefono dopo aver inviato il tuo contatto all’annunciante di modo che ti può rispondere.
Vedrai il telefono dopo aver stabilito il contatto
Inviando...