Voto Salvato!
Lo vedrai solo tu
Commento salvato!
Aggiungi la tua valutazione e/o un commento per questo annuncio. Lo vedrai solo tu
355.000 € Avvisami se diminuisce
è diminuito 14.000 €

Casa a schiera in urbanización haza del algarrobo 27 in Mijas

Urbanización Haza del Algarrobo 27

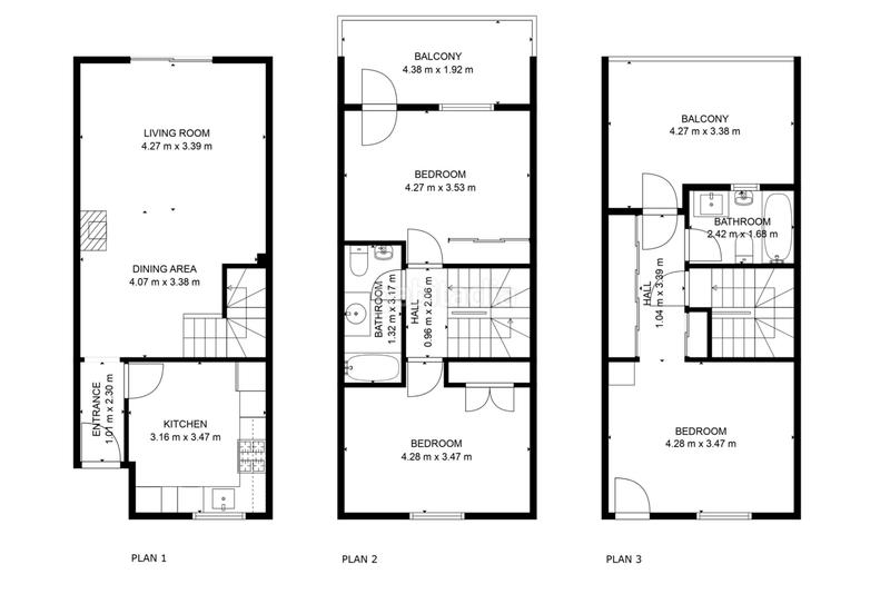
  • 154 m2
  • 3 hab.
  • 2 bagni
  • 2.305 €/m2

Espaciosa casa adosada familiar en una urbanización muy solicitada entre Mijas Pueblo y Fuengirola

Casa adosada orientada al sureste, ubicada en una popular urbanización cerrada entre el encantador y pintoresco pueblo blanco de Mijas y la vibrante localidad costera de Fuengirola. Disfruta de vistas a los cuidados jardines comunitarios en un entorno seguro y familiar.

Resumen

* 3 dormitorios en total (2 dobles y un amplio dormitorio principal con gran terraza privada en la planta superior)
* 2 baños (uno en suite)
* Comunidad cerrada y segura
* Ubicación junto a todos los servicios

Características interiores

* Recibidor con acceso a un amplio salón-comedor de planta abierta
* Chimenea funcional
* Patio privado y cerrado, ideal para disfrutar al aire libre
* Cocina moderna totalmente equipada con espacio para lavadora y amplio almacenamiento

Extras

* Aire acondicionado frío/calor en el salón y dormitorio principal
* Suelos de mármol con incrustaciones
* Persianas de seguridad
* Armarios empotrados en todos los dormitorios

Zonas comunes

* Gran piscina tipo laguna y piscina infantil
* Jardines comunitarios bien mantenidos
* Zona de juegos infantil cerrada
* Se vende sin amueblar
* Aparcamiento en la calle

Ubicada a poca distancia a pie de una nueva zona comercial con restaurantes y bien comunicada con el transporte público hacia Fuengirola y Mijas Pueblo.

Se recomienda visitarla.

ultima modifica

Distribuzione

  • 3 stanze
  • Superficie 154 m2
  • Terreno 84 m2
  • 2 bagni
  • Cucina abitabile

Caratteristiche Generali

  • Camino
  • Senza posto auto
  • ammobiliato
  • Aria Condizionata
  • Anno di costruzione 2001
  • Certificato energetico :
    Consumo:
    F
    999 kW h m2 / año
    Emisiones:
    F
    999 kg CO2 m2 / año

Impianti condominiali

  • Piscina Condominiale
Annuncio: 24410000002419

Ubicazione

Campo de Mijas Urbanización Haza del Algarrobo 27

Naviga per la mappa cliccandoci sopra
355.000 € Prezzo dell´annuncio
3.333 €/m2€/m2 distrito
2.305 €/m2€/m2 dell´annuncio
31% più economico della media*
Vedi evoluzione €/m2 in Mijas (Campo de Mijas)
Ti avvisiamo quando abbiamo un annuncio come questo? Crea il tuo avviso e noi ti avvertiremo per posta elettronica quando ci saranno annunci nuovi o se saranno modificati
 

Contatta SoloCasa

Codice rif. annuncio habitaclia/SOLOCASA5009524:

Vedrai il telefono dopo aver inviato il tuo contatto all’annunciante di modo che ti può rispondere.
Vedrai il telefono dopo aver stabilito il contatto
Inviando...