Favorito y comentario
Casa a schiera con riscaldamento parcheggio in Roses-Castellbell Sant Feliu de Llobregat
Caratteristiche principali
- 240 m2
- 4 hab.
- 3 bagni
- 3.875 €/m2
Informazioni dettagliate
AMAT IMMOBILIARIS ofrece fantástica casa adosada y reformada en venta, situada entre los barrios de Roses-Castellbell y Mas Lluí de Sant Feliu. Una excelente ubicación, a tan solo 5 minutos a pie del Parque Natural de Collserola y a 15 minutos en coche de la ciudad de Barcelona.
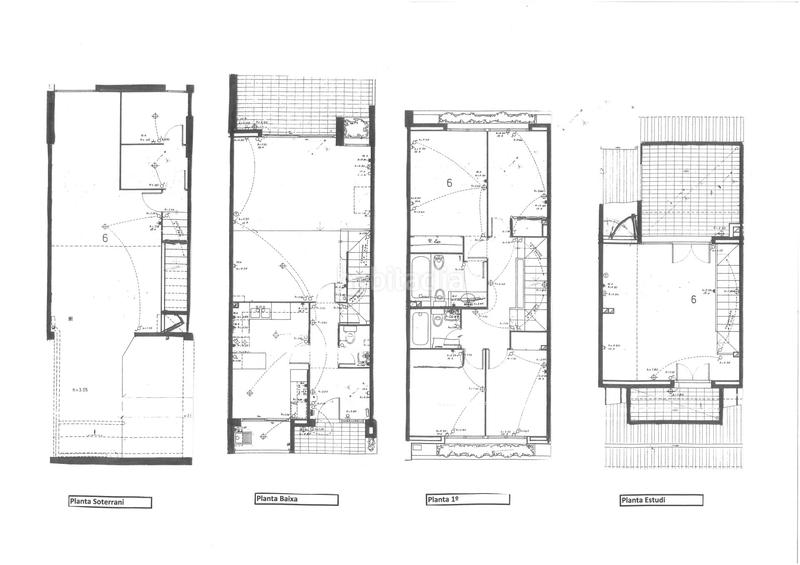
Vivienda cómodamente distribuida en 2 plantas más buhardilla y sótano, está completamente reformada y lista para entrar a vivir! Además, su orientación permite disfrutar del sol durante todo el día, y su ubicación dentro de un recinto cerrado exclusivo para vecinos, ofrece tranquilidad y silencio.
En planta baja dispone de recibidor, cocina-office completamente reformada con acabados de calidad, aseo de cortesía y salón-comedor con chimenea y salida a jardín privado de 55 m² con barbacoa de obra, ideal para disfrutar con familia y amigos. En 1ª planta se dispone la zona de noche, que cuenta con 1 dormitorio tipo suite con baño integrado, 2 dormitorios dobles y 1 individual, todos con armarios empotrados, más 2º baño con ducha. La buhardilla cuenta con una sala polivalente con salida a 2 terrazas, una de ellas tipo solárium con fantásticas vistas al mar y aeropuerto. Finalmente, en sótano, dispone de garaje tipo box con capacidad para 2 coches, zona lavandería y 1 habitación con armarios, ideal como espacio de almacenamiento.
Propiedad equipada con suelos de parquet natural, calefacción de gas por radiadores y carpintería exterior de aluminio.
ultima modifica
Distribuzione
- 4 stanze
- Superficie 240 m2
- Terrazza 18 m2
- 3 bagni
- Cucina abitabile
- ripostiglio
Caratteristiche Generali
- Riscaldamento
- Posto auto
- Senza aria condizionata
- Anno di costruzione 1988
Galleria
Ubicazione
Roses-Castellbell DEL COMTE DE VILARDAGA