Voto Salvato!
Lo vedrai solo tu
Commento salvato!
Aggiungi la tua valutazione e/o un commento per questo annuncio. Lo vedrai solo tu

Chalet con piscina in Benimeit-Tabaira Moraira

  • 346 m2
  • 4 hab.
  • 4 bagni
  • 5.188 €/m2

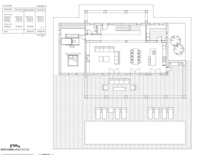
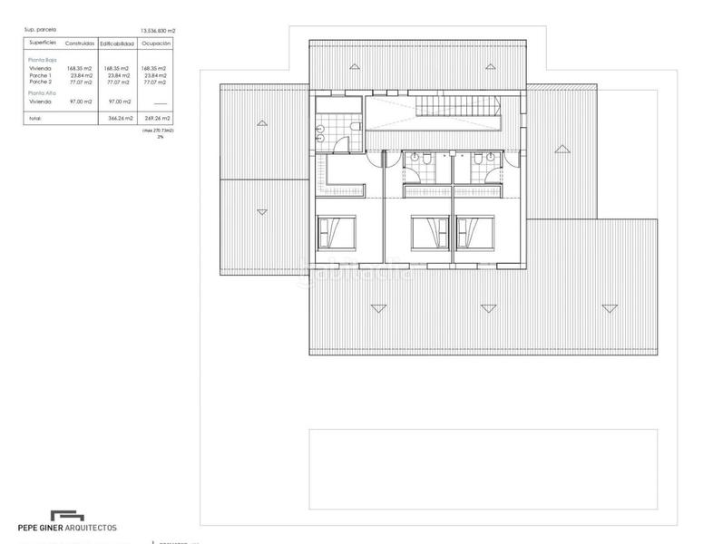
La villa en venta en la hermosa zona de Alicante refleja un cautivador estilo mediterráneo y se distribuye en tres niveles, todos interconectados mediante una escalera interna. Diseñada con un moderno concepto de salón-comedor-cocina, esta última está completamente equipada y cuenta con una isla central perfecta para inspirar a los amantes de la cocina. Este elegante inmueble ofrece el lujo de 4 dormitorios y 4 baños completos, complementados con un aseo de cortesía. Además, dispone de un amplio sótano y un lavadero totalmente funcional. La villa está acondicionada con aire central y calefacción central, garantizando un ambiente confortable en cada estación del año. La entrada principal automatizada proporciona seguridad adicional junto con un acceso peatonal con interfono, ofreciendo total privacidad. En el mismo nivel de la vivienda principal, se puede disfrutar de una espectacular piscina rodeada de una espaciosa terraza, perfecta para saborear el clima soleado de la región.

Adquirir una propiedad de nueva construcción en la zona de Alicante presenta numerosas ventajas, desde sus instalaciones modernas hasta la eficiencia energética que ofrecen sus avanzados sistemas de climatización. Estas viviendas están diseñadas para aprovechar al máximo el espacio, proporcionando áreas funcionales como la cocina de concepto abierto que fomenta la vida en común. Además, se integran innovaciones tecnológicas en seguridad, como puertas automáticas e interfonos, que suman un valor añadido de tranquilidad para los habitantes.

Residir en Moraira es experimentar un entorno singular donde la calma del mar se une a la belleza del paisaje. Este lugar es reconocido por su atmósfera apacible y por sus magníficos paisajes mediterráneos, estimulando la participación en actividades al aire libre. Además de contar con una variada oferta gastronómica y cultural, la excelente infraestructura de servicios convierte a esta ciudad en un enclave ideal para establecer un hogar, completo con todas las comodidades necesarias.

ultima modifica

Distribuzione

  • 4 stanze
  • Superficie 346 m2
  • Terreno 460 m2
  • 4 bagni

Caratteristiche Generali

  • Certificato energetico :
    Consumo:
    G
    999 kW h m2 / año
    Emisiones:
    G
    999 kg CO2 m2 / año

Impianti condominiali

  • Piscina Condominiale
Annuncio: 42544000001548

Ubicazione

Benimeit-Tabaira

Naviga per la mappa cliccandoci sopra
1.795.000 € Prezzo dell´annuncio
4.311 €/m2€/m2 población
5.188 €/m2€/m2 dell´annuncio
Quanto ti piacerebbe pagare?
Vedi evoluzione €/m2 in Moraira
Ti avvisiamo quando abbiamo un annuncio come questo? Crea il tuo avviso e noi ti avvertiremo per posta elettronica quando ci saranno annunci nuovi o se saranno modificati
 

Contatta Ybc Group

Codice rif. annuncio habitaclia/67236__COMPLEX__2495 :

Vedrai il telefono dopo aver inviato il tuo contatto all’annunciante di modo che ti può rispondere.
Vedrai il telefono dopo aver stabilito il contatto
Inviando...