Voto Salvato!
Lo vedrai solo tu
Commento salvato!
Aggiungi la tua valutazione e/o un commento per questo annuncio. Lo vedrai solo tu

Chalet con riscaldamento parcheggio piscina in Benimeit-Tabaira Moraira

  • 574 m2
  • 3 hab.
  • 3 bagni
  • 2.082 €/m2

EN PROYECTO


Descripción del Proyecto



Este exclusivo proyecto se encuentra en una parcela tranquila y privada, ideal para quienes valoran la paz y la privacidad sin renunciar a la comodidad de estar cerca de todos los servicios. Gracias a su orientación perfecta, la villa disfruta de luz natural todo el día, iluminando cada rincón de la vivienda.


Ubicada a solo 2,5 km del centro de Moraira, a 2 km del supermercado Pepe La Sal y a 3,3 km de la playa, esta propiedad combina la privacidad con una excelente proximidad a todo lo que necesitas.


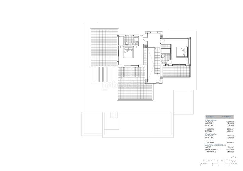
Distribución






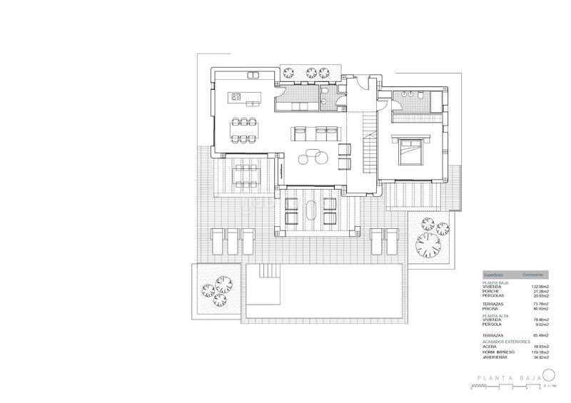
Planta Baja: Al entrar, te recibe un espacioso salón con comedor y una cocina completamente equipada, además de un baño de cortesía. Esta planta también cuenta con una habitación con baño en suite. En el exterior, disfrutarás de una terraza con piscina, una pérgola que ofrece sombra y un espacio ideal para relajarse y disfrutar del clima.
Planta Alta: En esta planta se sitúan dos amplios dormitorios, cada uno con baño en suite, ofreciendo comodidad y privacidad para cada miembro de la familia o invitados.


Equipamiento



La villa incluye cocina totalmente equipada, calefacción por suelo radiante, aire acondicionado, portón automático para entrada de coches con control remoto y puerta peatonal automática, garantizando un acceso cómodo y seguro.


La construcción de la villa se completará en un plazo de 14 a 16 meses desde el inicio de las obras.


Esta villa es una opción ideal para quienes buscan un hogar en una ubicación privilegiada, con un diseño funcional y una distribución pensada para disfrutar del confort y la tranquilidad en un entorno soleado. ¡Contáctanos para más información o para organizar una visita!

ultima modifica

Distribuzione

  • 3 stanze
  • Superficie 574 m2
  • Terreno 1964 m2
  • 3 bagni
  • ripostiglio

Caratteristiche Generali

  • Riscaldamento
  • Piscina privata
  • Posto auto
  • Aria Condizionata
  • Certificato energetico :
    Consumo:
    G
    999 kW h m2 / año
    Emisiones:
    G
    999 kg CO2 m2 / año
Annuncio: 52627000000027

Ubicazione

Benimeit-Tabaira

Naviga per la mappa cliccandoci sopra
1.195.000 € Prezzo dell´annuncio
4.311 €/m2€/m2 población
2.082 €/m2€/m2 dell´annuncio
52% più economico della media*
Quanto ti piacerebbe pagare?
Vedi evoluzione €/m2 in Moraira
Ti avvisiamo quando abbiamo un annuncio come questo? Crea il tuo avviso e noi ti avvertiremo per posta elettronica quando ci saranno annunci nuovi o se saranno modificati
 

Contatta Gh Costablanca

Codice rif. annuncio habitaclia/VD50219:

Vedrai il telefono dopo aver inviato il tuo contatto all’annunciante di modo che ti può rispondere.
Vedrai il telefono dopo aver stabilito il contatto
Inviando...