Voto Salvato!
Lo vedrai solo tu
Commento salvato!
Aggiungi la tua valutazione e/o un commento per questo annuncio. Lo vedrai solo tu

Chalet con riscaldamento parcheggio piscina in Benimeit-Tabaira Moraira

  • 350 m2
  • 3 hab.
  • 3 bagni
  • 6.000 €/m2

Una creación arquitectónica excepcional que redefine la vida mediterránea moderna a través de la innovación, el diseño y la belleza panorámica.
Una joya de elegancia y sofisticación
Esta moderna villa de lujo high-tech es una joya rara, ubicada en la tranquila y exclusiva zona residencial de Moraira. Diseñada con gusto refinado y meticulosa atención al detalle, combina estética atemporal con tecnología de vanguardia, ofreciendo una atmósfera de elegancia discreta y confort contemporáneo.
Un refugio de paz rodeado de naturaleza
Ubicada en una parcela elevada de 985 m² orientada al sur, la villa está rodeada de exuberantes jardines tropicales y muros de piedra natural que garantizan privacidad y armonía con el paisaje. Las impresionantes vistas al mar Mediterráneo y a las montañas circundantes proporcionan un telón de fondo natural en constante cambio que enriquece cada espacio de la propiedad.
Situada a pocos minutos del corazón de Moraira, un encantador pueblo costero conocido por sus playas doradas, elegante puerto deportivo y vibrante escena culinaria, la villa ofrece el equilibrio perfecto entre el lujo de la privacidad y el estilo de vida mediterráneo. Con restaurantes de alta cocina, boutiques elegantes y un prestigioso club náutico, Moraira es el destino ideal para quienes buscan paz, refinamiento y una calidad de vida verdaderamente privilegiada.
Distribución armoniosa en tres niveles
Esta refinada residencia ofrece una superficie construida total de 350 m² (superficie habitable neta: 288 m²), complementada con más de 200 m² de terrazas (54 m² cubiertas y 150 m² descubiertas). La espectacular piscina, de forma irregular y con unas dimensiones de 11,60 m x 6,44 m, está climatizada y refrigerada, con un sistema de tratamiento y gestión de agua de última generación.
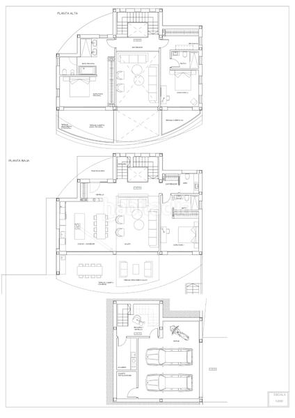
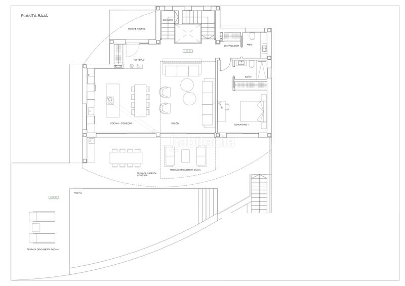
PLANTA PRINCIPAL
– Salón de doble altura (6 metros) con abundante luz natural y vistas al mar.
– Cocina de diseño de planta abierta totalmente equipada con electrodomésticos Siemens y AEG, isla central y vinoteca.
– Aseo de cortesía con acabados elegantes.
– Suite de invitados con baño privado y acceso directo a la terraza de la piscina.
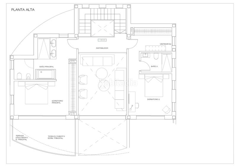
PLANTA ALTA
– Dos suites principales con vestidores privados y baños completos.
– Cada suite tiene acceso a su propia terraza privada con vistas panorámicas al mar y la montaña.
PLANTA BAJA
– Amplio garaje cerrado para 2 vehículos con almacenamiento integrado.
– Sala técnica (8 m²) para sistemas de piscina y energía.
– Lavadero totalmente equipado con lavadora y secadora LG.
– Armario IT ventilado e infraestructura Wi-Fi de nivel profesional.
Características y equipamiento excepcionales
Esta villa está equipada con una amplia gama de características de alta gama para garantizar confort, eficiencia y control total:
– Sistema domótico que gestiona iluminación, climatización, persianas, audio, seguridad, piscina y energía solar.
– Calefacción por suelo radiante (2 zonas) y aire acondicionado por conductos (2 zonas), todo controlado mediante sistema inteligente.
– Iluminación LED completa en toda la propiedad (interior y exterior).
– Ventanas Technal con vidrio de protección solar y persianas eléctricas.
– 40 m² de paneles solares Longi con inversor híbrido (Kostal), baterías de litio de 7,5 kWh y cargador para vehículo eléctrico Wallbox (11 kW).
– Agua caliente proporcionada por calentador solar de 300 L y unidad termodinámica de 230 L.
– Internet de fibra óptica, 6 puntos de acceso Ubiquiti, tomas RJ45 en cada estancia.
– Sistema de audio SONOS integrado en interiores y exteriores.
– Cocina de verano exterior con barbacoa Weber y plancha Forge Adour.
– Sistema de riego automático, iluminación de emergencia en garaje y rearme para todos los circuitos.
– Electrodomésticos inteligentes: horno de vapor Siemens, microondas, placa de inducción IQ700, campana FRECAN integrada en el techo, lavavajillas AEG, frigorífico/congelador LG y vinoteca.
Seguridad y vigilancia avanzadas
– Sistema de alarma Jablotron con inteligencia artificial y vigilancia Protectas 24/7.
– 10 cámaras interiores y exteriores con IA.
– 6 detectores de movimiento exteriores y 6 interiores.
– Detectores de humo, inundación y sabotaje.
– Dos sirenas exteriores, una sirena interior con luz intermitente.
– Grabador de vídeo con capacidad de almacenamiento de grabaciones de 3 semanas.
Aparcamiento e información práctica
– Garaje cerrado para 2 vehículos, espacio cubierto para 1 y aparcamiento exterior para hasta 10 coches.
– Puerta principal automática con videoportero.
– Licencia de Primera Ocupación (LPO) en vigor.
– IBI (impuesto sobre bienes inmuebles) 2024: 1.300 €.
– Certificado energético: A/A.
– Certificado para reventa de excedente energético a Iberdrola.
Una declaración de estilo de vida
Esta MODERNA VILLA DE LUJO HIGH-TECH no es solo una residencia, es una refinada declaración de estilo de vida. Combinando diseño elegante, sistemas energéticos sostenibles, tecnología avanzada y el encanto atemporal de

ultima modifica

Distribuzione

  • 3 stanze
  • Superficie 350 m2
  • Terreno 985 m2
  • 3 bagni
  • ripostiglio

Caratteristiche Generali

  • Riscaldamento
  • Piscina privata
  • Posto auto
  • ammobiliato
  • Aria Condizionata
  • Anno di costruzione 2021
  • Certificato energetico :
    Consumo:
    G
    999 kW h m2 / año
    Emisiones:
    G
    999 kg CO2 m2 / año
Annuncio: 52627000000122

Ubicazione

Benimeit-Tabaira

Naviga per la mappa cliccandoci sopra
2.100.000 € Prezzo dell´annuncio
4.311 €/m2€/m2 población
6.000 €/m2€/m2 dell´annuncio
Quanto ti piacerebbe pagare?
Vedi evoluzione €/m2 in Moraira
Ti avvisiamo quando abbiamo un annuncio come questo? Crea il tuo avviso e noi ti avvertiremo per posta elettronica quando ci saranno annunci nuovi o se saranno modificati
 

Contatta Gh Costablanca

Codice rif. annuncio habitaclia/VD50177:

Vedrai il telefono dopo aver inviato il tuo contatto all’annunciante di modo che ti può rispondere.
Vedrai il telefono dopo aver stabilito il contatto
Inviando...