Favorito y comentario
Chalet con riscaldamento parcheggio piscina in El Gasco Torrelodones
Caratteristiche principali
- 612 m2
- 7 hab.
- 3 bagni
- 3.595 €/m2
Informazioni dettagliate
Chalet independiente de 612 metros construidos en una parcela de 4.393 metros cuadrados con piscina. Ubicada en zona protegida por estar dentro del parque regional del Guadarrama y situada en un alto sobre la garganta del rio Guadarrama podemos disfrutar de unas vistas inigualables desde cualquier punto de la casa o el jardín.
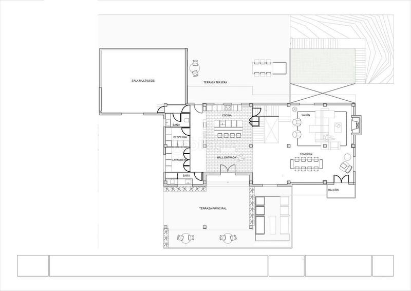
Entrando a la vivienda llegamos a una amplia cocina que hace de elemento central de distribucción. Desde esta por la izquierda accedemos a un precioso aseo de cortesía con luz natural, una espaciosa zona de lavandería también con luz natural y una zona de despensa. Desde la cocina salimos a la parte de atrás del jardín con orientación norte que la hace perfecta para una zona de comedor de verano y también accedemos a una gran sala polivalente de unos 50 metros cuadrados con aseo que puede tener diferentes usos, es ideal para la gente que quisiera tener su propio negocio en casa dada su gran amplitud y por tener salida directa al jardín sin pasar por la vivienda.
Desde la misma cocina bajamos a la planta baja donde tenemos un salón distribuidor con zona de TV, dos dormitorios de invitados con un baño completo que da uso a estos y un trastero. Todo ello con salida independiente al jardín. En esta planta baja se encuentra la sala de instalaciones de la calefacción que funciona por Aerotermia.
Desde el hall de la vivienda por la derecha llegamos a un amplísimo salón-comedor con una pequeña terraza con unas maravillosas vistas a la garganta del río Guadarrama, vistas que puedes divisar desde cualquier punto del salón.
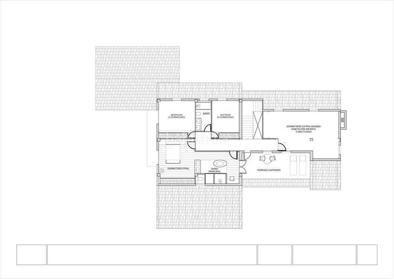
En la primera planta hay un dormitorio en suite con baño incorporado, vestidor y salida a una terraza con impresionantes vistas. Dos amplios dormitorios con un baño en el pasillo que da uso a estos y una sala de estar de 41 mt para uso polivalente sirviendo también de dormitorio si se quisiera.
Aún estando en plena naturaleza está cerca de todos los servicios que un núcleo urbano nos puede ofrecer ya que a unos 5 minutos en coche o 20 andando llegamos a la Colonia de Torrelodones donde podemos encontrar farmacias, supermercados, centro cultural y jardines. Además en la Colonia de Torrelodones se encuentra la estación de cercanías de Renfe y hay multitud de autobuses que conectan con los alrededores y bajan directos al Intercambiador de Moncloa en Madrid.
La vivienda acaba de ser reformada en su totalidad con un estilo "farmhouse" que resulta muy acogedor y embaucador, la belleza de su entorno ayuda también a resaltar ese resultado.
No dejes pasar la oportunidad de vivir en un entorno privilegiado en plena naturaleza con las comodidades de tener próxima una zona urbana.
Si quieres visitarla, no dudes en contactar, estaré encantada de atenderle...
ultima modifica
Distribuzione
- 7 stanze
- Superficie 612 m2
- Terreno 4393 m2
- 3 bagni
- ripostiglio
Caratteristiche Generali
- Riscaldamento
- Piscina privata
- Posto auto
- Aria Condizionata
- Anno di costruzione 1981
Galleria
Ubicazione
El Gasco
