Favorito y comentario
Chalet in poblado poblachuela anj 562 in Área Rual - Valverde - Las Casas Ciudad Real
Caratteristiche principali
- 320 m2
- 6 hab.
- 2 bagni
- 594 €/m2
Informazioni dettagliate
EQUO Inmobiliaria le ofrece este fabuloso chalet en una de las zonas más demandadas de la ciudad para este tipo de viviendas, La Poblachuela. A tan solo 5 minutos del centro de la ciudad, su amplia parcela de más de 3500m² le permite disfrutar del entorno natural y del lujo del espacio.
La vivienda es reciente por lo que fue diseñada y ejecuta con sistemas constructivos modernos, adaptados a normativa y cumple con los estándares que actualmente disfrutamos en las viviendas modernas.
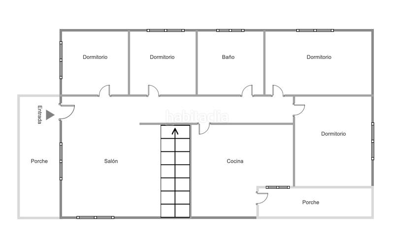
Se trata de un chalet de dos plantas muy amplias, que ofrece estancias grandes y a la vez luminosas y acogedoras. Al acceder, lo hacemos directamente, a través del porche, al gran salón con chimenea donde se encuentra la escalera para acceder a la planta superior. El pasillo nos conduce a cuatro habitaciones en esta planta, a una enorme cocina con salida a otro porche, sombreado con grandes árboles, y al gran baño, con plato de ducha y lavabo de doble seno.
La planta superior presenta grandes espacios abiertos abuhardillados, que ofrecen la opción de jugar con el espacio y hacer múltiples combinaciones en función de sus necesidades. Cuenta con un baño en esta planta y vistas a los campos de alrededor.
Toda la parcela se encuentra vallada, cuenta con zona para animales domésticos, arboles frutales, zonas de sombra, pozo y fosa séptica. La luz es de red. Además cuenta con una gran tinaja para almacenamiento de agua para riego.
La casa no está legalizada, pero se puede legalizar. Sin duda ofrece todo lo que se busca en este tipo de propiedades a un precio singular. No lo dude y reserve su visita
ultima modifica
Distribuzione
- 6 stanze
- Superficie 320 m2
- Terreno 3528 m2
- 2 bagni
- Cucina abitabile: No
Caratteristiche Generali
- Riscaldamento
- Posto auto
- ammobiliato
- Senza aria condizionata
- Anno di costruzione 2006
Galleria
Ubicazione
Área Rual - Valverde - Las Casas Poblado Poblachuela Anj 562