Visita virtuale
Voto Salvato!
Lo vedrai solo tu
Commento salvato!
Añade tu valoración y/o un comentario para este anuncio. Sólo lo verás tú

Edificio in Vista Alegre Madrid

  • 393 m2
  • 4.046 €/m2

Huspy vende en exclusiva edificio de uso mixto en Carabanchel (Vistalegre), una de las zonas en auge de la capital. Edificio con gran potencial para inversores.
Finca construida en 1970. Cuenta con aparcamiento privado de hasta 4 automóviles y 3 viviendas constituidas y posibilidad de ampliar capacidad dentro de la finca. No tiene división horizontal hecha.

Las dimensiones catastrales del inmueble son de 393 m2. y se desglosan de la siguiente forma:

Vivienda en la planta baja (44 m2)
Aparcamiento en planta baja (88 m2)
Vivienda en la primera planta (101 m2)
Vivienda en la segunda planta (74 m2)
Vivienda en la tercera planta (67 m2)
Vivienda en la cuarta planta, parte dúplex del 3º (19 m2)

La finca se divide en:

- Planta sótano
- Garaje planta baja con una superficie de 88 m2.
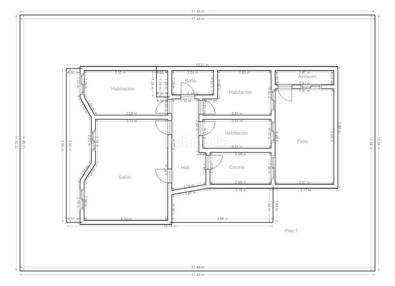
- 1º Vivienda compuesta de salón + 2 habitaciones (antes 3) + 1 cuarto de baño completo + cocina + terraza exterior + terraza interior privada con una superficie catastral de 101 m2.
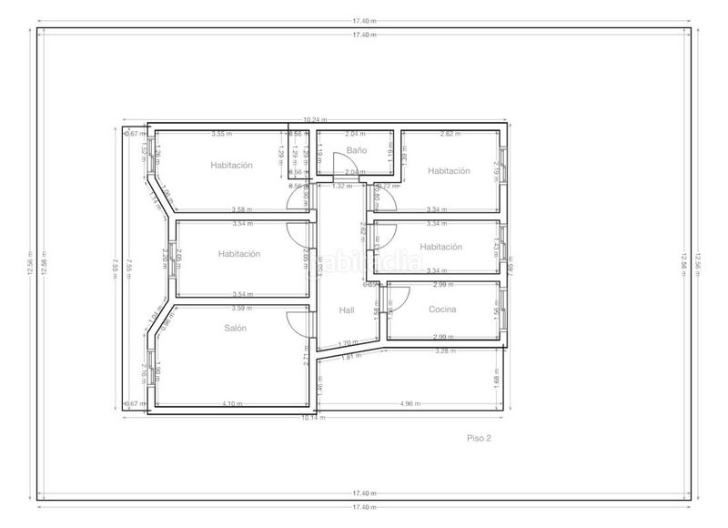
- 2º Vivienda compuesta de salón + 3 habitaciones + 1 baño completo + cocina + terraza exterior con una superficie catastral de 74 m2.
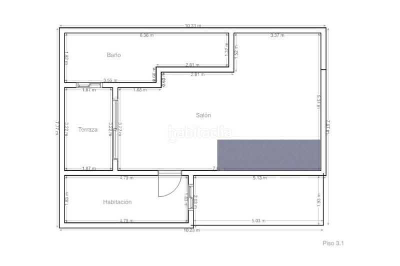
- 3º Vivienda ático dúplex compuesta en su planta baja por un salón + cocina + 1 dormitorio + baño completo + terraza exterior y en su planta superior 1 baño completo + 1 dormitorio + salón + terraza. Teniendo la planta baja 67 m2 y la cuarta 19 m2.

Fabulosa ubicación en la zona:

- 1 minuto de Farmacia.
- 5 minutos de parada de Autobús Urbano EMT (Líneas 17, 35, N17, N26).
- 5 minutos de parada de Autobús Interurbano EMT (Líneas 481 y 486).
- 5 minutos de parada de Metro Carabanchel (Línea 5).
- 5 minutos Centro Privado de Educación Infantil, Primaria y Secundaria Vedruna.
- 5 minutos Biblioteca Pública Municipal La Chata.
- 5 minutos Ceu-Instituto Superior De Estudios Profesionales.
- 5 minutos Colegio De Educación Infantil Y Primaria Haití.
- 10 minutos de amplia oferta de todo tipo de servicios (supermercados, salud, bienestar, etc).

Si deseas concertar una visita presencial para conocer el inmueble y su entorno no dudes en ponerte en contacto con nosotros.
¡Te esperamos!

ultima modifica

Distribuzione

  • Superficie 393 m2

Caratteristiche Generali

  • Anno di costruzione 1970
  • Certificato energetico :
    Consumo:
    G
    999 kW h m2 / año
    Emisiones:
    G
    999 kg CO2 m2 / año
Annuncio: 49951000006254

Ubicazione

Vista Alegre C. de Antolina Merino

Naviga per la mappa cliccandoci sopra
Ti avvisiamo quando abbiamo un annuncio come questo? Crea il tuo avviso e noi ti avvertiremo per posta elettronica quando ci saranno annunci nuovi o se saranno modificati
 

Contatta Huspy

Codice rif. annuncio habitaclia/06b89cff-e317-4506-9d80-56a8dad59e69:

Vedrai il telefono dopo aver inviato il tuo contatto all’annunciante di modo che ti può rispondere.
Vedrai il telefono dopo aver stabilito il contatto
Inviando...