Voto Salvato!
Lo vedrai solo tu
Commento salvato!
Aggiungi la tua valutazione e/o un commento per questo annuncio. Lo vedrai solo tu

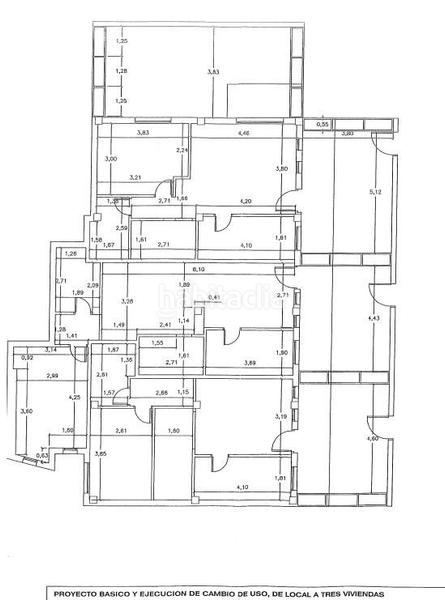
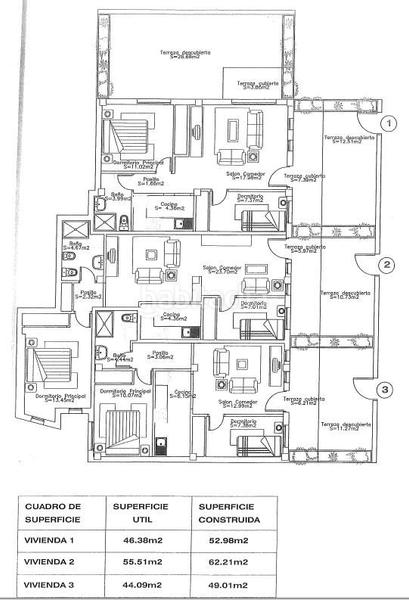
Locale commerciale in Manantiales-Estación de Autobuses Torremolinos

  • 169 m2
  • 1.775 €/m2

Local muy bien ubicado para hacer cambio de uso, cuenta con 169 mts cuadrados internos y 130 metros de terraza en escrituras. Se pueden hacer 4 apartamentos turisticos, ideal para inversionistas. Esta en los bajos de edificio bien mantenido con piscina y parking comunitario lo que lo hace mas atractivo

Chiedere altri dati all´annunciante

ultima modifica

Distribuzione

  • Superficie 169 m2

Caratteristiche Generali

  • Aria Condizionata
  • Certificato energetico :
    Consumo:
    G
    999 kW h m2 / año
    Emisiones:
    G
    999 kg CO2 m2 / año
Annuncio: 46269000000381

Ubicazione

Manantiales-Estación de Autobuses N/A

Naviga per la mappa cliccandoci sopra
Ti avvisiamo quando abbiamo un annuncio come questo? Crea il tuo avviso e noi ti avvertiremo per posta elettronica quando ci saranno annunci nuovi o se saranno modificati
 

Contatta Hyattpremium

Codice rif. annuncio habitaclia/FH19055:

Vedrai il telefono dopo aver inviato il tuo contatto all’annunciante di modo che ti può rispondere.
Vedrai il telefono dopo aver stabilito il contatto
Inviando...