Voto Salvato!
Lo vedrai solo tu
Commento salvato!
Aggiungi la tua valutazione e/o un commento per questo annuncio. Lo vedrai solo tu
140.000 € Avvisami se diminuisce
è diminuito 10.000 €

Locale commerciale in Rafalafena Castellón de la Plana

  • 240 m2
  • 2 bagni
  • 583 €/m2

ATENCION INVERSORES: GRAN OPORTUNIDAD de Local en el CENTRO COMERCIAL RAFALAFENA:
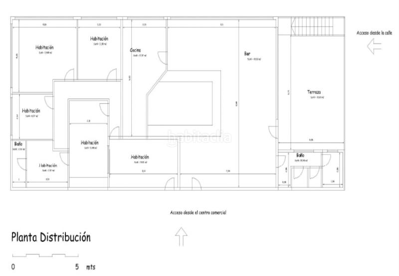
Tienen una superficie de 205m2 aproximados de local más terrazas con un total construido de unos 240m2, el local está listo para entrar y trabajar (recientemente reformado)
Se divide en varias estancias donde actualmente se utiliza como una ludoteca.
Tiene dado de alta el agua y la luz y cuenta con ascensor.
El local es ideal para Ludoteca, centro de deportes, oficinas … ya que está muy cerca de la Ciudad de la Justicia o destinarlo para alquilarlo para oficinas coworking.
Esta al lado del gimnasio Suma y a 5 minutos del centro de Castellón.

Impuestos y comisión inmobiliaria no incluido en el precio.
*Este anuncio es a título informativo, no vinculante, ni contractual con posibles variaciones o erratas.

ultima modifica

Distribuzione

  • Superficie 240 m2

Caratteristiche Generali

  • Senza aria condizionata
  • Anno di costruzione 1980
  • Certificato energetico :
    Consumo:
    G
    999 kW h m2 / año
    Emisiones:
    G
    999 kg CO2 m2 / año
Annuncio: 30158000000295

Ubicazione

Rafalafena Carrer de Rafalafena

Naviga per la mappa cliccandoci sopra
Ti avvisiamo quando abbiamo un annuncio come questo? Crea il tuo avviso e noi ti avvertiremo per posta elettronica quando ci saranno annunci nuovi o se saranno modificati
 

Contatta JCB INMOBILIARIA

Codice rif. annuncio habitaclia/258:

Vedrai il telefono dopo aver inviato il tuo contatto all’annunciante di modo che ti può rispondere.
Vedrai il telefono dopo aver stabilito il contatto
Inviando...