Favorito y comentario
Piano terra 113m2 con parcheggio piscina in El Puerto Dénia
Caratteristiche principali
- da 113 m2
- 2 hab.
- 2 bagni
- 2.735 €/m2

DENIA URBAN HOMES
Esta promoción tiene 15 tipos de abitazioni Vedi promozioneInformazioni dettagliate
Descubre Dénia Urban Homes, nuestra nueva promoción de viviendas en Dénia, el lugar perfecto para vivir cerca del mar!.
LICENCIA DE OBRA CONCEDIDA – SUELO EN PROPIEDAD
A solo 10 minutos de la playa, este fabuloso desarrollo residencial ofrece una amplia variedad de opciones con viviendas de 1, 2 y 3 dormitorios para adaptarse a tus necesidades y estilo de vida
Cada vivienda ha sido diseñada para proporcionar comodidad y funcionalidad. Los espacios interiores están distribuidos de manera inteligente, aprovechando al máximo cada metro cuadrado. Los acabados de alta calidad, combinados con un diseño moderno y elegante, crean un ambiente acogedor y contemporáneo con espacios luminosos y ventilados.
Algunas de las unidades ofrecen vistas panorámicas al mar, lo que te brinda la oportunidad de disfrutar de hermosos paisajes desde la comodidad de tu hogar.
Además, la promoción cuenta con una serie de comodidades y servicios exclusivos para los residentes. Disfrutarás de zonas ajardinadas, una piscina comunitaria donde podrás relajarte y refrescarte en los días calurosos de verano, y una zona de juegos para los más pequeños.
También se incluye aparcamiento privado para mayor comodidad, así como trasteros que te ayudarán a tener más organizada tu casa.
La ubicación estratégica de esta promoción te brinda acceso rápido y fácil a la playa, donde podrás disfrutar del sol y el mar en cualquier momento que desees. Además, estarás cerca de tiendas, restaurantes, servicios y lugares de ocio, lo que te permitirá disfrutar también de una vida nocturna.
No pierdas la oportunidad de ser propietario de una de estas increíbles viviendas en Dénia Urban Homes, ya sea que busques tu hogar ideal cerca de la playa o una inversión rentable, esta promoción es perfecta para ti.
¡Contáctanos ahora para obtener más información y reserva tu visita!
ultima modifica
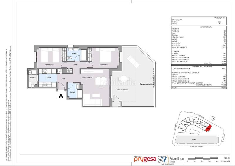
Distribuzione
- 2 stanze
- Superficie 113 m2
- Terrazza 36 m2
- 2 bagni
- Cucina abitabile: No
- ripostiglio
Caratteristiche Generali
- Posto auto
- Senza aria condizionata
Impianti condominiali
- Ascensore
- Piscina Condominiale
Galleria
Ubicazione
El Puerto Camí dels Lladres

Dati comparativi
Appartiene alla promozione DENIA URBAN HOMES

- Piso
- 89 m2
- 2 hab
- 243.000 €
- Vedi annuncio
- Piso
- 89 m2
- 1 hab
- 270.000 €
- Vedi annuncio
- Piso
- 106 m2
- 3 hab
- 291.000 €
- Vedi annuncio
- Piso
- 114 m2
- 3 hab
- 293.000 €
- Vedi annuncio
- Piso
- -1 m2
- 298.000 €
- Vedi annuncio
- Piso
- 106 m2
- 3 hab
- 301.000 €
- Vedi annuncio
- Piso
- 109 m2
- 3 hab
- 312.000 €
- Vedi annuncio
- Planta baja
- 121 m2
- 2 hab
- 327.000 €
- Vedi annuncio
- Planta baja
- 131 m2
- 3 hab
- 340.000 €
- Vedi annuncio
- Planta baja
- 131 m2
- 3 hab
- 345.000 €
- Vedi annuncio
- Ático
- 153 m2
- 3 hab
- 430.000 €
- Vedi annuncio
- Piso
- 165 m2
- 2 hab
- 470.000 €
- Vedi annuncio
- Ático
- 231 m2
- 3 hab
- 645.000 €
- Vedi annuncio
- Ático
- 250 m2
- 3 hab
- 699.000 €
- Vedi annuncio