Voto Salvato!
Lo vedrai solo tu
Commento salvato!
Aggiungi la tua valutazione e/o un commento per questo annuncio. Lo vedrai solo tu

Piccolo appartamento in Centre Roses

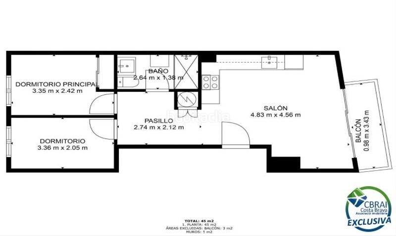
  • 50 m2
  • 2 hab.
  • 1 bagno
  • 4.100 €/m2

Este moderno piso construido en 2020 ofrece una oportunidad única en el centro de Roses. Situado en una zona residencial tranquila y bien comunicada, este inmueble se destaca por su excelente estado de conservación y su impecable diseño.

La propiedad consta de dos dormitorios, un baño completo, una cocina americana equipada y un acogedor salón-comedor con acceso a un balcón, brindando un ambiente luminoso y acogedor para disfrutar. El edificio cuenta con ascensor y acabados de alta calidad que realzan su moderna apariencia.

Una característica destacada es la posibilidad de adquirir un amplio garaje en el mismo edificio, brindando comodidad adicional y espacio para los residentes. Además, el piso aún se encuentra bajo garantía del promotor, ofreciendo tranquilidad y fiabilidad para el futuro propietario.

Ideal tanto como residencia habitual o como inversión, esta propiedad representa una oportunidad perfecta para aquellos que buscan establecerse en una de las zonas más cotizadas de la Costa Brava. Una combinación única de comodidad, diseño moderno y ubicación privilegiada que no se puede dejar pasar.

ultima modifica

Distribuzione

  • 2 stanze
  • Superficie 50 m2
  • 1 bagno

Caratteristiche Generali

  • Anno di costruzione 2025
  • Certificato energetico :
    Consumo:
    C
    11 kW h m2 / año
    Emisiones:
    C
    55 kg CO2 m2 / año

Impianti condominiali

  • Ascensore
Annuncio: 9027004169593

Ubicazione

Centre

Naviga per la mappa cliccandoci sopra
205.000 € Prezzo dell´annuncio
3.535 €/m2€/m2 población
4.100 €/m2€/m2 dell´annuncio
Vedi evoluzione €/m2 in Roses
Ti avvisiamo quando abbiamo un annuncio come questo? Crea il tuo avviso e noi ti avvertiremo per posta elettronica quando ci saranno annunci nuovi o se saranno modificati
 

Contatta Immo365CostaBrava

Codice rif. annuncio habitaclia/CBR6040:

Vedrai il telefono dopo aver inviato il tuo contatto all’annunciante di modo che ti può rispondere.
Vedrai il telefono dopo aver stabilito il contatto
Inviando...