Visita virtuale
Voto Salvato!
Lo vedrai solo tu
Commento salvato!
Aggiungi la tua valutazione e/o un commento per questo annuncio. Lo vedrai solo tu
298.999 € Avvisami se diminuisce
è diminuito 11.001 €

Piccolo appartamento in holanda 14 in Playa de San Juan Alicante

  • 68 m2
  • 1 hab.
  • 1 bagno
  • 4.397 €/m2

Magnífico Apartamento en Urbanización de Lujo

Precioso apartamento en pleno centro de playa San Juan en Urbanización de lujo junto al mar.

A escasos 200 metros del mar, se encuentra este exclusivo apartamento situado en una de las mejores fincas de playa San Juan con excelentes servicios comunitarios.

La vivienda, en perfecto estado con muchas mejoras recientes - Tarima, A/A frio y calor, terraza dada al salón - con posibilidad de un 2ª dormitorio-, persianas eléctricas, etc...

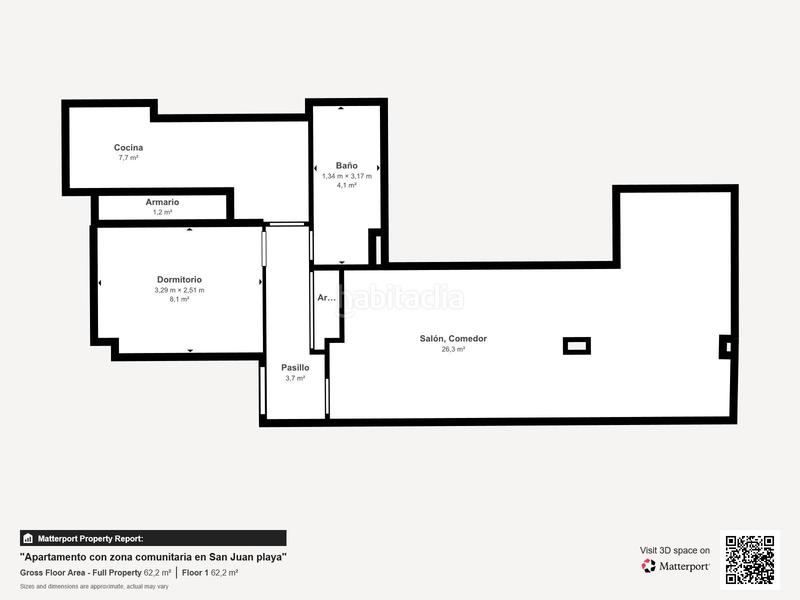
La vivienda se encuentra distribuida en:

Un dormitorio doble con gran luminosidad y amplio armario.

Amplio salón-comedor con terraza incorporada muy luminoso y con preciosa vistas las zonas comunes,

Vestidor en el pasillo, muy práctico para almacenamiento.

Baño con moderno plato de ducha.

Cocina con galería office integrada, lo que aporta mayor funcionalidad.

La urbanización ofrece todo lo necesario para disfrutar al máximo: piscina, amplias zonas ajardinadas, club social, áreas infantiles, pistas de tenis, fútbol, squash, gimnasio, etc..., además, dispone de parking libre en superficie, con la posibilidad de adquirir plaza de garaje subterráneo en el mismo bloque por 25.000 € adicionales.

Por ubicación, servicios y estado de conservación, esta vivienda se convierte en una oportunidad única para disfrutar de la mejor calidad de vida junto al mar.


La presente información es meramente comercial, no vinculante.

ultima modifica

Distribuzione

  • 1 stanza
  • Superficie 68 m2
  • 1 bagno

Caratteristiche Generali

  • Aria Condizionata
  • Anno di costruzione 1987
  • Vicino ai trasporti pubblici
  • Certificato energetico :
    Consumo:
    D
    64 kW h m2 / año
    Emisiones:
    C
    11 kg CO2 m2 / año

Impianti condominiali

  • Ascensore
  • Piscina Condominiale
Annuncio: 20386000000324

Ubicazione

Playa de San Juan HOLANDA 14

Naviga per la mappa cliccandoci sopra
298.999 € Prezzo dell´annuncio
3.913 €/m2€/m2 distrito
4.397 €/m2€/m2 dell´annuncio
Quanto ti piacerebbe pagare?
Vedi evoluzione €/m2 in Alicante (Playa de San Juan-El Cabo de las Huertas)
Ti avvisiamo quando abbiamo un annuncio come questo? Crea il tuo avviso e noi ti avvertiremo per posta elettronica quando ci saranno annunci nuovi o se saranno modificati
 

Contatta Costa Blanca Selección

Codice rif. annuncio habitaclia/CBS911:

Vedrai il telefono dopo aver inviato il tuo contatto all’annunciante di modo che ti può rispondere.
Vedrai il telefono dopo aver stabilito il contatto
Inviando...