Voto Salvato!
Lo vedrai solo tu
Commento salvato!
Aggiungi la tua valutazione e/o un commento per questo annuncio. Lo vedrai solo tu
325.000 € Avvisami se diminuisce
è diminuito 55.000 €

Piccolo appartamento con parcheggio piscina in Playa Flamenca Orihuela

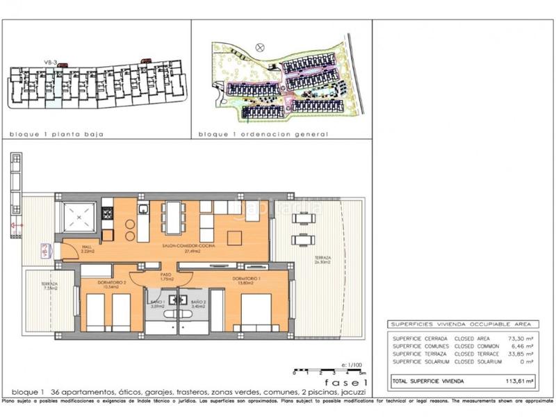
  • 73 m2
  • 2 hab.
  • 2 bagni
  • 4.452 €/m2

RESIDENCIAL DE OBRA NUEVA EN PLAYA FLAMENCA !!!

RESIDENCIAL DE OBRA NUEVA EN PLAYA FLAMENCA !!!

De un promotor de gran experiencia en la zona, estamos orgullosos de ofrecer este nuevo residencial recién lanzado a la venta a solo 500 m del mar en la popular zona de Playa Flamenca (Orihuela Costa).

Residencial con bonitas piscinas comunitarias, jacuzzis y bonitos jardines comunes. Todos los servicios como supermercados, bares y restaurantes, etc. se encuentran a poca distancia en un lugar muy céntrico de Orihuela Costa.

Amplia variedad de tipos para elegir: estudios, apartamentos de habitaciones. Pisos bajos con jardines privados o áticoss con solarium privados. Todas las viviendas cuentan con plaza de garaje y trastero incluidos en el precio.

El centro comercial Zenia Boulevard a 1 km y varios campos de golf como Villamartín, Campoamor a 5 km de este residencial lo convertirán en un lugar ideal para sus vacaciones o su vida permanente.
#ref:N5809

ultima modifica

Distribuzione

  • 2 stanze
  • Superficie 73 m2
  • Terrazza 33 m2
  • 2 bagni

Caratteristiche Generali

  • Posto auto
  • Aria Condizionata
  • Certificato energetico :
    Consumo:
    G
    999 kW h m2 / año
    Emisiones:
    G
    999 kg CO2 m2 / año

Impianti condominiali

  • Ascensore
Annuncio: 22407000004437

Ubicazione

Playa Flamenca

Naviga per la mappa cliccandoci sopra
325.000 € Prezzo dell´annuncio
3.388 €/m2€/m2 distrito
4.452 €/m2€/m2 dell´annuncio
Quanto ti piacerebbe pagare?
Vedi evoluzione €/m2 in Orihuela (Orihuela Costa)
Ti avvisiamo quando abbiamo un annuncio come questo? Crea il tuo avviso e noi ti avvertiremo per posta elettronica quando ci saranno annunci nuovi o se saranno modificati
 

Contatta KOLSTAD PROPERTY

Codice rif. annuncio habitaclia/N5809:

Vedrai il telefono dopo aver inviato il tuo contatto all’annunciante di modo che ti può rispondere.
Vedrai il telefono dopo aver stabilito il contatto
Inviando...