Favorito y comentario
Lo vedrai solo tu
Terreno residenziale in carrer de frança 45 in Can Gambús Sabadell
Caratteristiche principali
- 704 m2
- 753 €/m2
Informazioni dettagliate
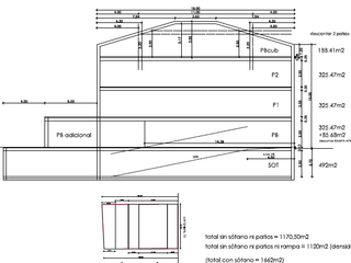
Este terreno se encuentra en Carrer de França, Sabadell, Barcelona. Es un terreno que engloba 6 parcelas de uso unifamiliar, situadas en el Sector Can Gambús, con una superficie conjunta de 704,14m2s y una edificabilidad de m2e. Referencias Catastrales: 3101854DG2030A0001YL, 3101853DG2030A0001BL, 3101852DG2030A0001AL, 3101851DG2030A0001WL, 3101850DG2030A0001HL, 3101804DG2030A0001DL.
Chiedere altri dati all´annuncianteultima modifica
Distribuzione
- Superficie 704 m2
Galleria
Ubicazione
Can Gambús Carrer de França 45
Naviga per la mappa cliccandoci sopra

habitaclia.com non si responsabilizza degli errori che l´informazione mostrata su questa mappa potrebbe contenere. L´utente sarà il responsabile dell´uso che farà della suddetta informazione.
Ti avvisiamo quando abbiamo un annuncio come questo?
Crea il tuo avviso e noi ti avvertiremo per posta elettronica quando ci saranno annunci nuovi o se saranno modificati