Voto Salvato!
Lo vedrai solo tu
Commento salvato!
Aggiungi la tua valutazione e/o un commento per questo annuncio. Lo vedrai solo tu

Affitto ufficio con riscaldamento parcheggio in Lavadores Vigo

AVENIDA DE MADRID

  • 517 m2
  • 6,19 €/m2

Amplias oficinas en Avenida de Madrid, totalmente acondicionadas y distribuidas en dos Plantas

Exteriores muy luminosas y con zona de aparcamiento exterior

Una propiedad estratégica y polivalente, perfecta para emprendedores e inversores que buscan potenciar su negocio en una ubicación privilegiada de Vigo.

CONTÁCTANOS YA Para más información, visita y reservas en VigoHome

Consúltanos sin compromiso y le ayudaremos a encontrar el local que mejor se adapte a sus necesidades.

Puedes ver el resto de nuestras propiedades disponibles en nuestra página web, ponte en contacto con nosotros y estaremos encantados en orientarte en tu compra. Te acompañaremos y asesoraremos en el proceso de la compraventa hasta la entrega de llaves.

Asesórate con nosotros. Ofrecemos estudio financiero gratis donde podrás conseguir una financiación a tu medida (sujeta a estudio)

Contáctanos ya!! A través de este formulario, llamándonos o a través de nuestra web

La información contenida en este anuncio es meramente informativa y no tiene carácter contractual.

ultima modifica

Distribuzione

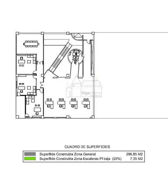
  • Superficie 517 m2

Caratteristiche Generali

  • Riscaldamento
  • Posto auto
  • ammobiliato
  • Aria Condizionata
  • Anno di costruzione 1999
  • Certificato energetico :
    Consumo:
    G
    999 kW h m2 / año
    Emisiones:
    G
    999 kg CO2 m2 / año

Impianti condominiali

  • Ascensore
Annuncio: 33588000002697

Ubicazione

Lavadores AVENIDA DE MADRID

Naviga per la mappa cliccandoci sopra
Ti avvisiamo quando abbiamo un annuncio come questo? Crea il tuo avviso e noi ti avvertiremo per posta elettronica quando ci saranno annunci nuovi o se saranno modificati
 

Contatta VigoHome

Codice rif. annuncio habitaclia/L010200:

Vedrai il telefono dopo aver inviato il tuo contatto all’annunciante di modo che ti può rispondere.
Vedrai il telefono dopo aver stabilito il contatto
Inviando...