Favorito y comentario
Affitto ufficio in Sant Gervasi - Galvany Barcelona
Caratteristiche principali
- 179 m2
- 13,97 €/m2
Informazioni dettagliate
Oficina en alquiler junto a Via Augusta y Avenida Diagonal
Oficina en alquiler en finca señorial junto a Via Augusta
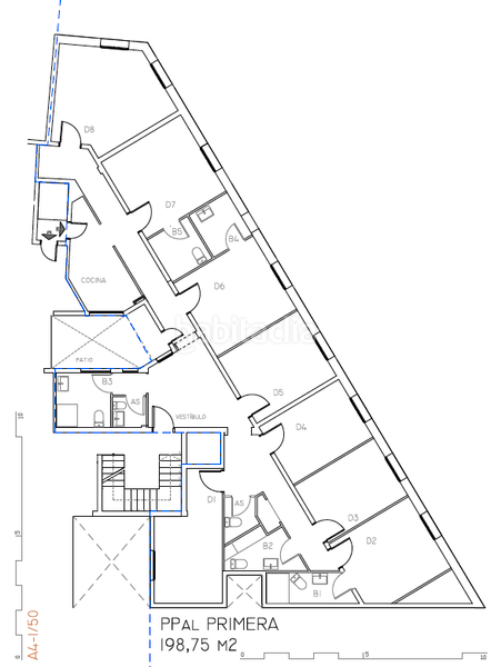
Oficina situada en planta principal, con 179 m² construidos, ubicada en la confluencia de Gràcia y Sant Gervasi, a pocos pasos de Via Augusta.
Actualmente, está distribuida en varios despachos, con posibilidad de adaptar la distribución según las necesidades de la empresa.
Dispone de:
- Acceso mediante ascensor y montacargas.
- Cocina equipada.
- 1 baño de cortesía y 6 baños completos (4 de ellos integrados en despachos).
- Ideal para sede corporativa o despacho profesional.
La propiedad está abierta a colaborar en la adecuación del espacio, ofreciendo flexibilidad para facilitar la implantación del nuevo inquilino.
La zona cuenta con excelentes comunicaciones (FGC, autobuses y accesos viarios) y todos los servicios a su alrededor.
ENGLISH:
Office for rent in stately building next to Via Augusta
Office located on the main floor, with 179 sqm built area, at the intersection of Gràcia and Sant Gervasi, just steps from Via Augusta.
Currently divided into several offices, with the possibility to adapt the layout according to the company’s needs.
It features:
- Access via elevator and freight lift.
- Equipped kitchen.
- 1 courtesy bathroom and 6 full bathrooms (4 of them en-suite in private offices).
- Ideal for corporate headquarters or professional office.
The property is open to collaborating on the adaptation of the space, offering flexibility to facilitate the tenant’s implementation.
The area boasts excellent transport connections (FGC, buses, and road access) and a full range of nearby services.
CATALÀ:
Oficina de lloguer en finca senyorial al costat de Via Augusta
Oficina situada a la planta principal, amb 179 m² construïts, a la confluència de Gràcia i Sant Gervasi, a pocs passos de Via Augusta.
Actualment està dividida en diversos despatxos, amb possibilitat d’adaptar la distribució segons les necessitats de l’empresa.
Disposa de:
- Accés mitjançant ascensor i muntacàrregues.
- Cuina equipada.
- 1 bany de cortesia i 6 banys complets (4 d’ells integrats en despatxos).
- Ideal per a seu corporativa o despatx professional.
La propietat està oberta a col·laborar en l’adequació de l’espai, oferint flexibilitat per facilitar la implantació del nou llogater.
La zona compta amb excel·lents comunicacions (FGC, autobusos i accessos viaris) i tots els serveis al voltant.
ultima modifica
Distribuzione
- Superficie 179 m2
Caratteristiche Generali
- Aria Condizionata
- Anno di costruzione 1945
Impianti condominiali
- Ascensore
Galleria
Ubicazione
Sant Gervasi - Galvany
