Voto Salvato!
Lo vedrai solo tu
Commento salvato!
Aggiungi la tua valutazione e/o un commento per questo annuncio. Lo vedrai solo tu

Casale con parcheggio piscina in Cap Martí - El Tossalet - Pinomar Xàbia

  • 152 m2
  • 3 hab.
  • 2 bagni
  • 5.592 €/m2

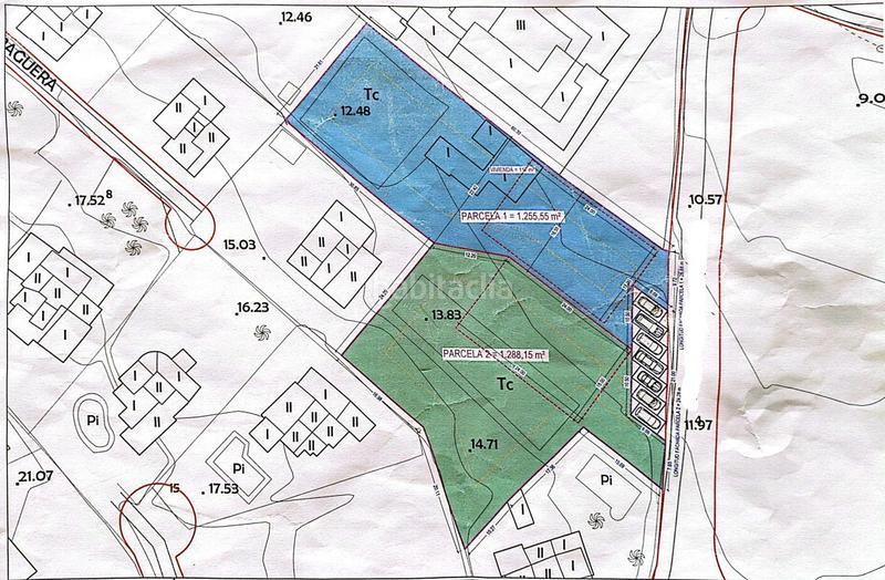
Parcela de 2.600 m2 con casa y posibilidad de división en dos parcelas edificables
Esta parcela se encuentra a muy poca distancia de la playa de arena de Jávea y ofrece una excelente oportunidad de inversión. La parcela se puede dividir perfectamente en dos parcelas edificables independientes de unos 1.300 m2 cada una, aptas para realizar dos villas de lujo.
Actualmente, la parcela contiene una villa de una sola planta con una superficie construida de 152 m². La propiedad cuenta con un salón con cocina abierta, un segundo salón-comedor con cocina cerrada, tres dormitorios, dos baños y un patio con trastero.
Esta parcela se encuentra a poca distancia de la playa de arena de Jávea y goza de una excelente ubicación cerca de todos los servicios. Supermercados, restaurantes, consultas médicas, instalaciones deportivas y otras necesidades diarias se encuentran a poca distancia. Esta ubicación combina la privacidad con la comodidad de una ubicación céntrica.

ultima modifica

Distribuzione

  • 3 stanze
  • Superficie 152 m2
  • Terreno 2600 m2
  • 2 bagni
  • ripostiglio

Caratteristiche Generali

  • Piscina privata
  • Posto auto
  • Senza aria condizionata
  • Certificato energetico :
    Consumo:
    G
    999 kW h m2 / año
    Emisiones:
    G
    999 kg CO2 m2 / año
Annuncio: 28548000002672

Ubicazione

Cap Martí - El Tossalet - Pinomar

Naviga per la mappa cliccandoci sopra
850.000 € Prezzo dell´annuncio
3.676 €/m2€/m2 población
5.592 €/m2€/m2 dell´annuncio
Quanto ti piacerebbe pagare?
Vedi evoluzione €/m2 in Xàbia
Ti avvisiamo quando abbiamo un annuncio come questo? Crea il tuo avviso e noi ti avvertiremo per posta elettronica quando ci saranno annunci nuovi o se saranno modificati
 

Contatta ARZUAGA INMOBILIAIRA

Codice rif. annuncio habitaclia/AR55218:

Vedrai il telefono dopo aver inviato il tuo contatto all’annunciante di modo che ti può rispondere.
Vedrai il telefono dopo aver stabilito il contatto
Inviando...