Voto Salvato!
Lo vedrai solo tu
Commento salvato!
Aggiungi la tua valutazione e/o un commento per questo annuncio. Lo vedrai solo tu

Terreno residenziale in Centro Ciudad Xàbia

  • 2.600 m2
  • 327 €/m2

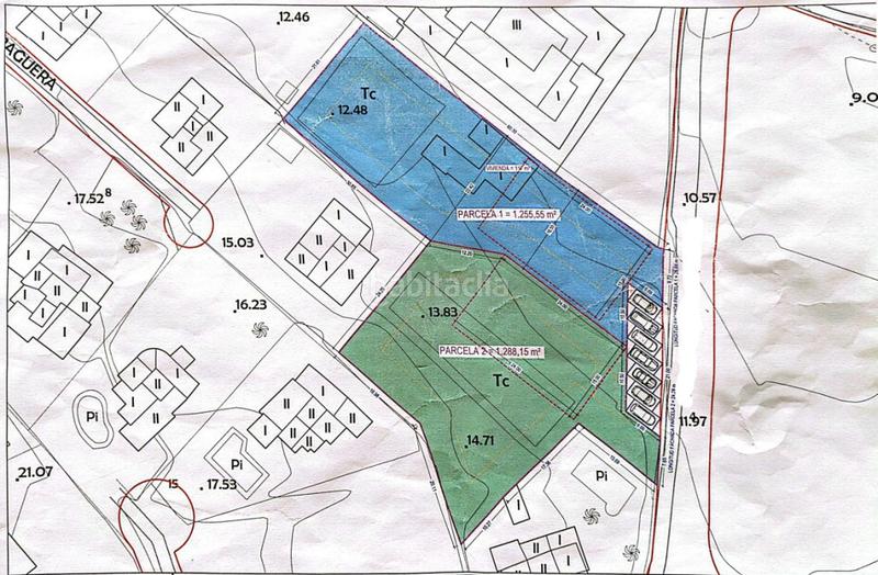
Interesante para inversores - Parcela de 2.600 m2 con casa y posibilidad de división en dos parcelas edificables
Esta parcela se encuentra a muy poca distancia de la playa de arena de Jávea y ofrece una excelente oportunidad de inversión. La parcela se puede dividir perfectamente en dos parcelas edificables independientes de unos 1.300 m2 cada una, aptas para realizar dos villas de lujo.
Actualmente, la parcela contiene una villa de una sola planta con una superficie construida de 152 m². La propiedad cuenta con un salón con cocina abierta, un segundo salón-comedor con cocina cerrada, tres dormitorios, dos baños y un patio con trastero.
Esta parcela se encuentra a poca distancia de la playa de arena de Jávea y goza de una excelente ubicación cerca de todos los servicios. Supermercados, restaurantes, consultas médicas, instalaciones deportivas y otras necesidades diarias se encuentran a poca distancia. Esta ubicación combina la privacidad con la comodidad de una ubicación céntrica.

ultima modifica

Distribuzione

  • Superficie 2600 m2
Annuncio: 53299000000515

Ubicazione

Centro Ciudad

Naviga per la mappa cliccandoci sopra
Ti avvisiamo quando abbiamo un annuncio come questo? Crea il tuo avviso e noi ti avvertiremo per posta elettronica quando ci saranno annunci nuovi o se saranno modificati
 

Contatta JAVEA ESTATES

Codice rif. annuncio habitaclia/60-4544-5:

Vedrai il telefono dopo aver inviato il tuo contatto all’annunciante di modo che ti può rispondere.
Vedrai il telefono dopo aver stabilito il contatto
Inviando...