Voto Salvato!
Lo vedrai solo tu
Commento salvato!
Aggiungi la tua valutazione e/o un commento per questo annuncio. Lo vedrai solo tu

Affitto capannone industriale in can quadres 1 in Sabadell

  • 3.155 m2
  • 2 bagni
  • 4,53 €/m2

Nave industrial en alquiler en EixampleSant Oleguer08203

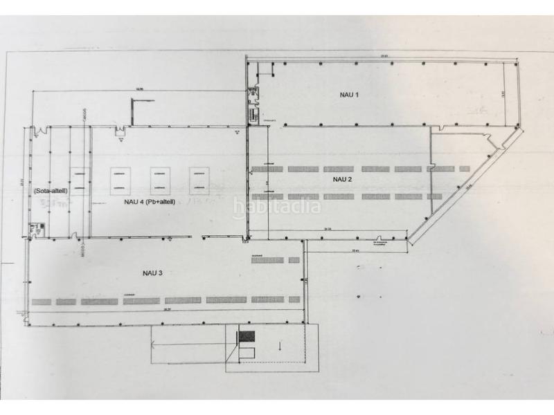
Fincamps comercializa excepcional nave en la zona de Sant Oleguer en Sabadell , la superficie de la nave es de 2.056 m² y se distribuye de la siguiente manera :
- Una primera zona con 1.000m² y unas medidas de 42m de ancho y 24m de profundidad aproximadamente todo ello con una espectacular altura de 12m , en la misma zona pero en un extremo disponemos de casi 200m² de oficina la cual se podría anular si necesitáramos mas espacio ya que disponemos de la misma altura de 12m.
Puerta de acceso TIR con 4,5 m de altura y 5,4 m de anchura.
-Una segunda zona de 866m²con una anchura de 60m y una profundidad de 14m , acceso por una puerta peatonal en un extremo y otro acceso de mas de 4m de anchura ,en esta zona la altura queda limitada a 4 m.
-Una tercera zona con una superficie total de 1099 m², disponemos de una anchura de 58 m y una profundidad de 18m aproximadamente , todo ello con una excepcional altura libre de 9 m , totalmente diáfana , la nave dispone de un acceso peatonal y una puerta TIR independiente con un muelle de carga .


Si necesita una nave de gran capacidad y excepcional altura no dude en consultarnos.
Usos permitidos , almacén y servicios.
Posibilidad de añadir otra nave de 1.134 m² con 7m de altura.

ultima modifica

Distribuzione

  • Superficie 3155 m2

Caratteristiche Generali

  • Anno di costruzione 1875
Annuncio: 693004449142

Ubicazione

Sol i Padrís - Sant Oleguer Can Quadres 1

Naviga per la mappa cliccandoci sopra
Ti avvisiamo quando abbiamo un annuncio come questo? Crea il tuo avviso e noi ti avvertiremo per posta elettronica quando ci saranno annunci nuovi o se saranno modificati
 

Contatta FINCAMPS

Codice rif. annuncio habitaclia/011568:

Vedrai il telefono dopo aver inviato il tuo contatto all’annunciante di modo che ti può rispondere.
Vedrai il telefono dopo aver stabilito il contatto
Inviando...