Favorito y comentario
Affitto ufficio con riscaldamento in Dreta de l´Eixample Barcelona
Caratteristiche principali
- 1.498 m2
- 12,68 €/m2
Informazioni dettagliate
Oficina en duplex en Rambla Catalunya.
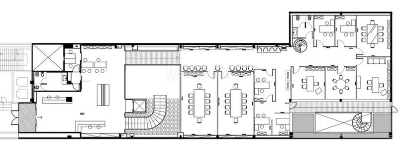
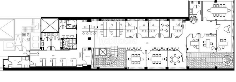
DESGLOSE DE SUPERFICIE
Planta 1: 507m²
Planta baja: 611m²
Archivo (sótano):380m²
Total: 1.498m²
CONDICIONES ECONÓMICAS
Renta: 12,68€/m²/mes
Gastos: a determinar
IBI a consultar
CARACTERISTICAS
Suelo técnico
Falso techo con luminarias empotradas
Estructura diáfana
Conserjería
2 terrazas privativas
Gran imagen corporativa
Con derecho a terraza superior de 140 m²
UBICACIÓN
Edificio de oficinas en Rambla Catalunya, en pleno centro de negocios y comercial de Barcelona. Cuenta con excelentes comunicaciones por transporte público.
Metro: L5 parada Diagonal, L2-L4 P. de Gràcia, L1-L3 Pl. Catalunya
FGC: S1-S2-S5-S55-L6-L7 parada Pl. Catalunya
RENFE: parada Passeig de Gràcia /Pl. Catalunya
Bus: 28-43-N4-N5-N6
Si lo prefiere, puede contactar con nosotros a través de WhatsApp escribiéndonos en el:
ultima modifica
Distribuzione
- Superficie 1498 m2
Caratteristiche Generali
- Riscaldamento
- Senza posto auto
- Senza ammobiliare
- Aria Condizionata
- Piano numero 1
Impianti condominiali
- Senza ascensore
Galleria
Ubicazione
Dreta de l´Eixample N/A
