Voto Salvato!
Lo vedrai solo tu
Commento salvato!
Aggiungi la tua valutazione e/o un commento per questo annuncio. Lo vedrai solo tu

Affitto ufficio con riscaldamento in El Parc i la Llacuna del Poblenou Barcelona

  • 1.405 m2
  • 3 bagni
  • 16,50 €/m2

Oficina en alquiler Plugplay en 22

OFICINA PLUG & PLAY DE 1405 m2

Oficina en alquiler de 1.405 m2 plug & play ,implantada en edificio de uso exclusivo situado en el distrito del 22@ y calle Marina, al lado de plaza Glorias.



CARACTERÍSTICAS:

¦ Oficina implantada Plug&Play con mobiliario de última generación, ocupa toda la planta independiente para una sola empresa

¦ Superficies diáfanas Open spaces, salas de reuniones y despachos individuales, cocina independiente.

¦ Falso techo con luminarias Osram y Nuevo sistema de aire acondicionado con multi sección de zonas con sistema VRV.

¦ Ventanas con cristal térmico y doble vidrio de grandes dimensiones.

¦ Pavimento con suelo técnico para red de datos, booths individuales,

¦ Baños completos de hombre y mujer y adaptados a sillas de ruedas.

¦ Gastos de comunidad e IBI, 2.747 euros (incluye calefacción)



CARACTERÍSTICAS DEL EDIFICIO:

¦ Fachada muro cortina.

¦ Acceso 24 horas.

¦ 4ascensores y 1 montacargas de gran capacidad.

¦ Servicio de conserjería 24 horas.

Comunicaciones:

¦ BUS: 6, H14, N11, V23 - TRAM: T4 Teatro Nacional - METRO: L1 Marina / L4 Bogatell – Llacuna

Ideal empresas corporativas que buscan cercanía al centro y a su vez estar rodeado de empresas tecnológicas, ingenierías y espacios multiculturales en fusión con multinacionales y estudiantes con nuevos talentos. Ideal logística de escuelas de formación y másters.
* En cumplimiento de la Ley 12/2023 y la Llei 18/2007 informamos que:
Ref. AOB2402021

ultima modifica

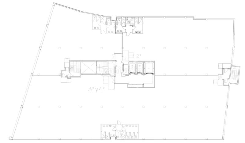
Distribuzione

  • Superficie 1405 m2

Caratteristiche Generali

  • Riscaldamento
  • Senza posto auto
  • Aria Condizionata
  • Anno di costruzione 2000
  • Certificato energetico :
    Consumo:
    E
    100 kW h m2 / año
    Emisiones:
    E
    10 kg CO2 m2 / año

Impianti condominiali

  • Ascensore
Annuncio: 30116000001517

Ubicazione

El Parc i la Llacuna del Poblenou C/ de Sancho de Ávila

Naviga per la mappa cliccandoci sopra
Ti avvisiamo quando abbiamo un annuncio come questo? Crea il tuo avviso e noi ti avvertiremo per posta elettronica quando ci saranno annunci nuovi o se saranno modificati
 

Contatta APROPERTIES REAL ESTATE - OFICINAS

Codice rif. annuncio habitaclia/AOB2402021:

Vedrai il telefono dopo aver inviato il tuo contatto all’annunciante di modo che ti può rispondere.
Vedrai il telefono dopo aver stabilito il contatto
Inviando...